Medina Township Police Station

About The Project

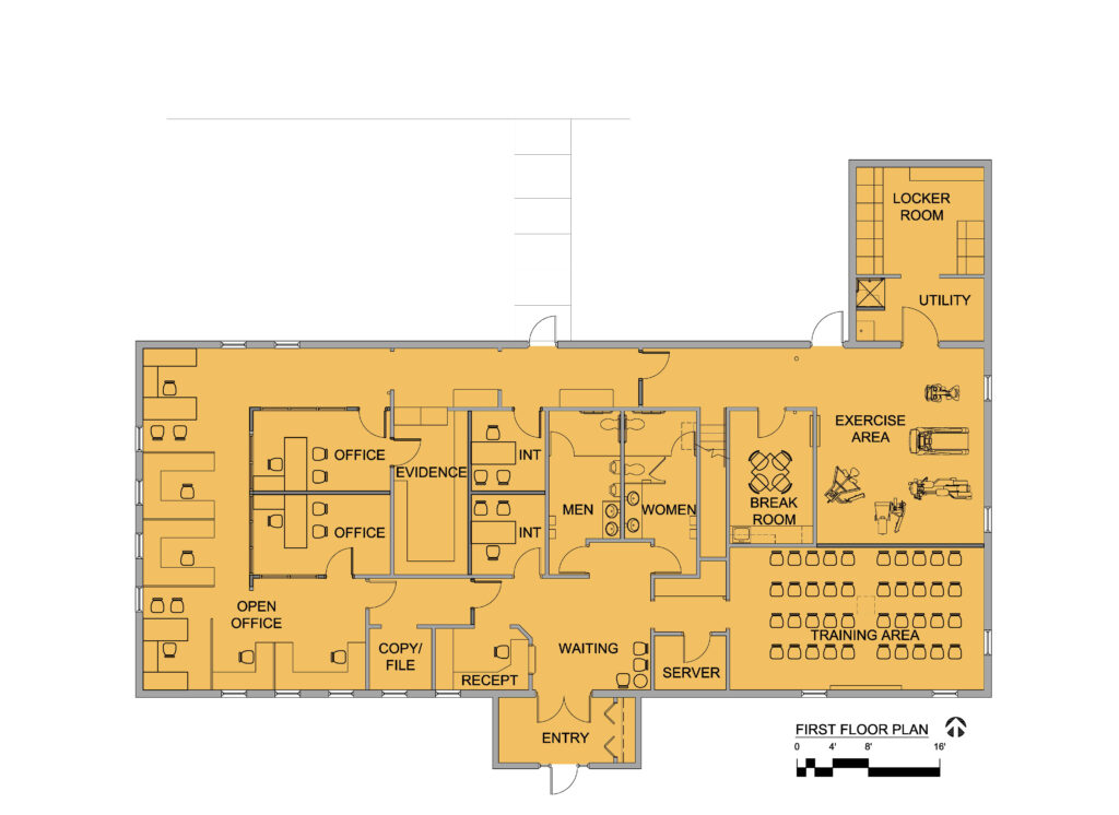
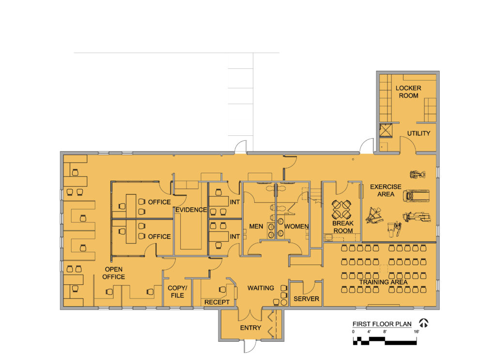
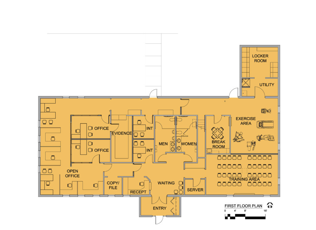
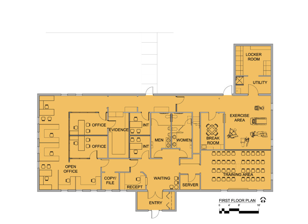
TC Architects worked with the Medina Township Police Department to convert an old office building into a new Police Station.  The 4,900 square foot facility includes the following spaces:  reception, report room, interrogation room, office area for the Officers, break / work room, Chief’s office, Sergeant’s offices, conference room, evidence room, exercise room, and training room.  It has a 1,200 square foot sally port expansion to house six additional police cars.  Security enhancements were also part of this project, which included:  electronic door access controls and video and sound cameras.

Exterior 1
Exterior 2
Floor Plan